역삼센트럴자이 분양정보 총정리
서울 강남의 중심, 역삼동에 새로 탄생하는 고급 주거공간 역삼센트럴자이. 2025년 12월 5일자로 공개된 공식 입주자모집공고에 따르면, 본 단지는 GS건설이 시공하고, 강남에서도 손꼽히는 입지와 분양가상한제 적용으로 실수요자들의 이목이 집중되고 있습니다. 이번 글에서는 청약 일정부터 자격 조건, 전매제한, 분양가까지 모든 세부사항을 꼼꼼히 정리했습니다.
📑 목차
1. 단지 개요 및 위치
역삼센트럴자이는 서울특별시 강남구 역삼동 758번지 일원에 들어서는 재건축 단지입니다. 총 4개 동, 지하 3층~지상 17층 규모로 구성되며, 전체 237세대 중 일반분양은 87세대입니다. 시행사는 역삼동(758, 은하수, 760)주택재건축정비사업조합, 시공은 GS건설이 맡았습니다.
입지는 강남권에서도 손꼽히는 핵심 위치로, 2호선 역삼역과 9호선 언주역이 도보 거리에 있으며, 테헤란로 업무지구와 코엑스, 도심·잠실권으로의 접근성이 매우 뛰어납니다. 또한 도곡초, 역삼중, 진선여중고 등 우수 학군과 대형 상권이 인접해 있어 실거주 만족도가 높습니다.
| 구분 | 내용 |
|---|---|
| 위치 | 서울 강남구 역삼동 758번지 일원 |
| 총 세대수 | 237세대 (조합원 149, 일반 87, 보류지 1) |
| 층수 | 지하 3층~지상 17층 |
| 시행사 | 역삼동(758,은하수,760)주택재건축정비사업조합 |
| 시공사 | GS건설 |
| 입주예정 | 2028년 8월 예정 |

2. 청약일정 및 모집공고 요약
입주자모집공고일은 2025년 12월 5일이며, 청약 일정은 다음과 같습니다.
| 구분 | 일정 | 비고 |
|---|---|---|
| 특별공급 | 2025.12.15(월) | 청약홈 접수 |
| 1순위(해당지역) | 2025.12.16(화) | 서울 2년 이상 거주자 |
| 1순위(기타지역) | 2025.12.17(수) | 서울 2년 미만·경기·인천 거주자 |
| 2순위 | 2025.12.18(목) | 청약통장 보유자 |
| 당첨자 발표 | 2025.12.24(수) | 청약홈(www.applyhome.co.kr) |
| 계약 | 2026.01.05~01.07 | 자이갤러리 3층 (대치동) |
| 입주예정 | 2028.08 | 공정률 따라 변동 가능 |
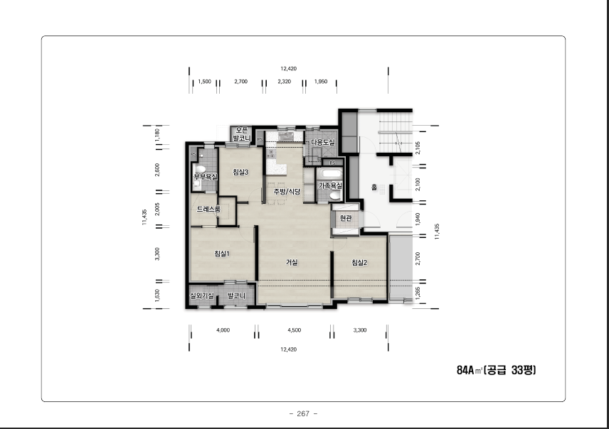
3. 공급세대수 및 주택형 구성
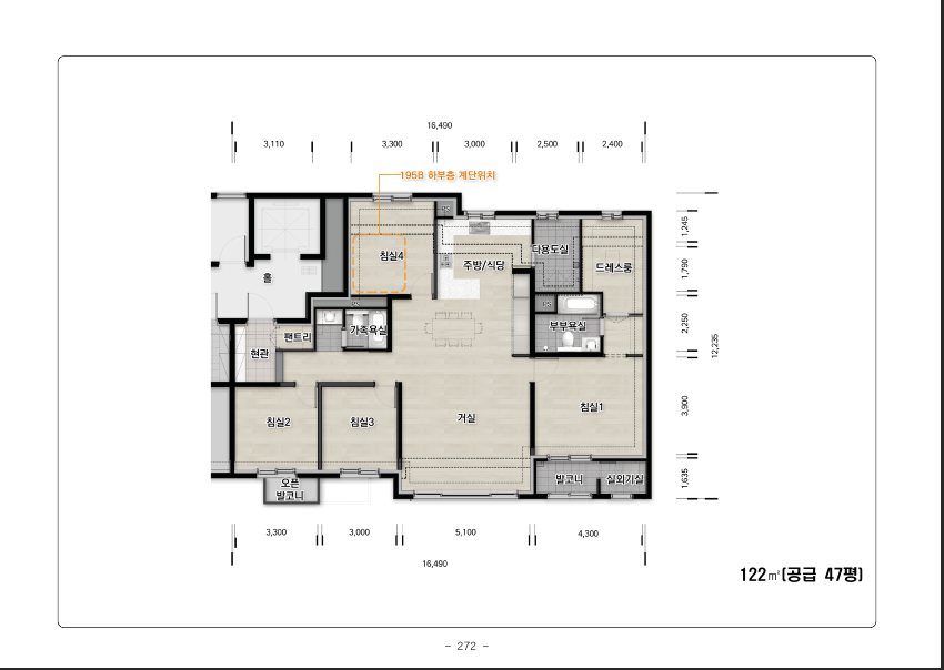
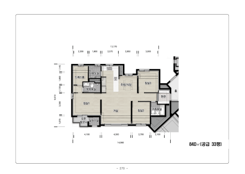
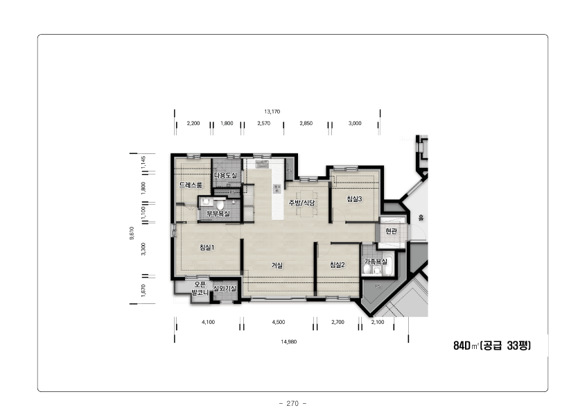
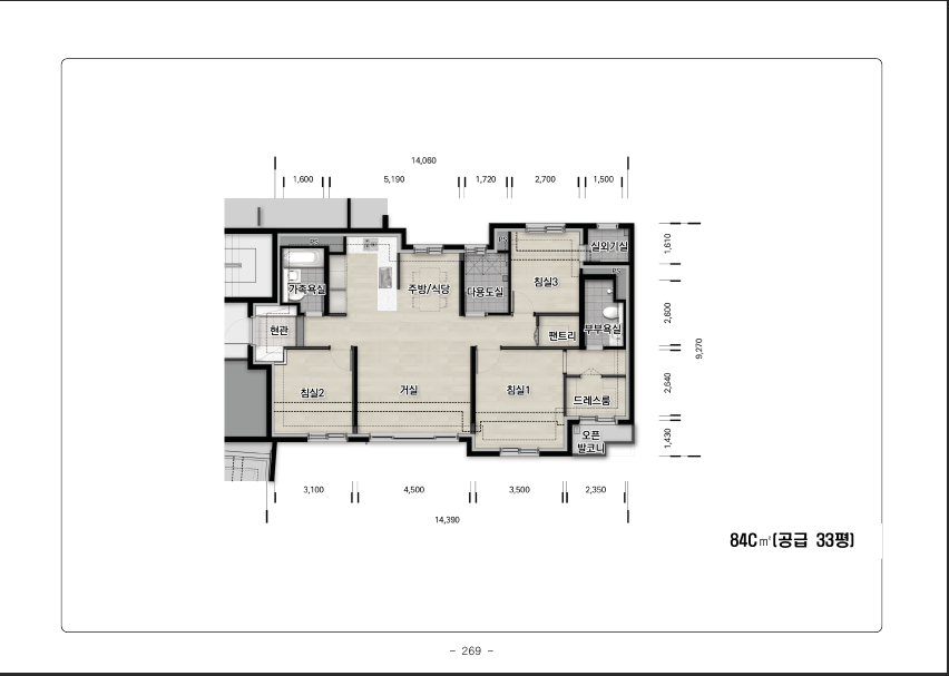
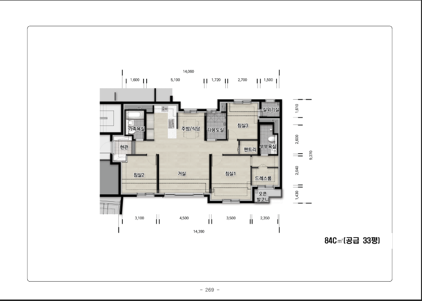
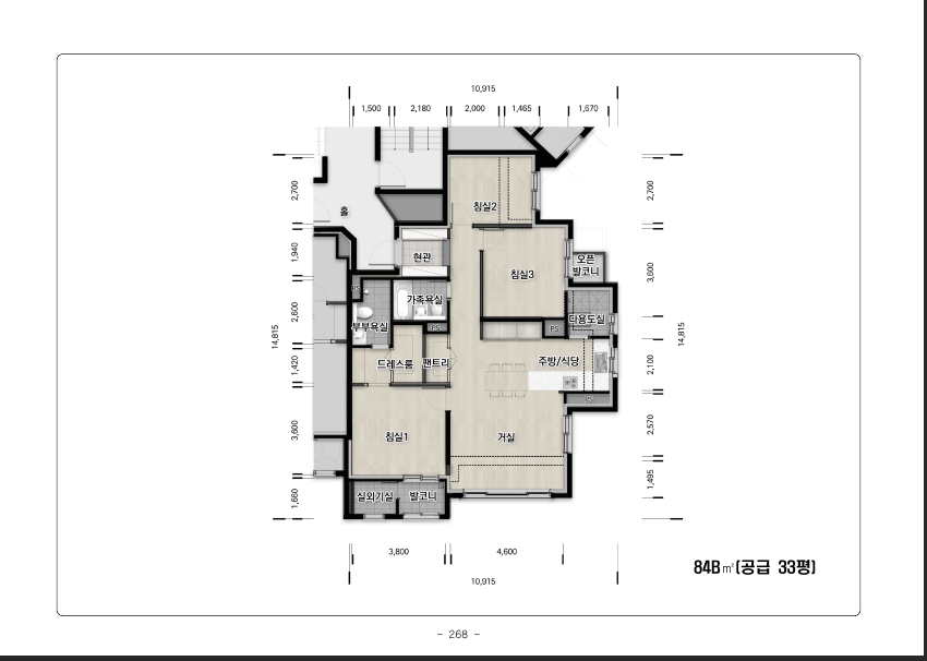
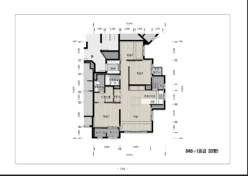
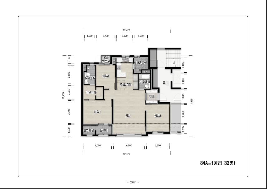
역삼센트럴자이는 실수요자 선호도가 높은 84㎡ 타입 중심으로 구성되어 있으며, 소형 59㎡형부터 대형 122㎡형까지 다양한 평면이 마련되어 있습니다.
| 주택형 | 전용면적(㎡) | 일반공급 | 특별공급 | 총세대 |
|---|---|---|---|---|
| 59형 | 59.9800 | 6 | 4 | 10 |
| 84A형 | 84.9700 | 19 | 23 | 42 |
| 84B형 | 84.9600 | 6 | 7 | 13 |
| 84C형 | 84.9800 | 6 | 5 | 11 |
| 84D형 | 84.9600 | 2 | 3 | 5 |
| 122형 | 122.9900 | 5 | 1 | 6 |






4. 분양가 및 납부일정
공고문에 명시된 최고가 기준 분양금액은 아래와 같습니다. (단위: 만원)
| 주택형 | 공급금액 | 비고 |
|---|---|---|
| 59형 | 201,200 | 청약통장으로 청약, 청약금 없음 |
| 84A형 | 281,300 | - |
| 84B형 | 269,700 | - |
| 84C형 | 275,000 | - |
| 84D형 | 281,100 | - |
| 122형 | 379,800 | - |
납부구조
- 계약금 : 20%
- 중도금 : 60% (6회 분납)
- 잔금 : 20% (입주 시 납부)
발코니 확장비 : 1,663만 ~ 2,953만원 (타입별 상이) 모든 납부는 KB국민은행 가상계좌로만 가능하며, 현금·수표 수납은 불가합니다.
5. 특별공급 유형 및 자격요건
총 43세대가 특별공급으로 배정되었습니다.
| 유형 | 공급세대수 | 자격조건 요약 |
|---|---|---|
| 기관추천 | 8 | 국가유공자, 장애인, 장기복무군인 등 |
| 다자녀가구 | 9 | 미성년 자녀 2명 이상 |
| 신혼부부 | 17 | 혼인 7년 이내, 소득 140% 이하 |
| 생애최초 | 7 | 무주택세대주, 5년 이상 소득세 납부 |
| 노부모부양 | 2 | 65세 이상 직계존속 3년 이상 부양 |
특별공급은 모든 세대가 무주택세대여야 하며, 각 유형별 청약통장 자격기간과 소득·자산기준을 충족해야 합니다.
6. 청약자격 및 규제요약
- 서울특별시 2년 이상 거주자 1순위 우선공급
- 청약통장 24개월 이상 + 지역별 예치금 충족
- 무주택세대 구성원 필수
- 동일 세대 중복 청약 불가
- 당첨 시 청약통장 재사용 불가
| 구분 | 적용 내용 |
|---|---|
| 투기과열지구 | 재당첨 제한 10년 |
| 청약과열지역 | 가점제 적용, 2주택자 1순위 제외 |
| 분양가상한제 | 상한가격 내 공급가 확정 |
| 전매제한 | 3년 (소유권이전등기 완료 시까지) |
| 거주의무 | 2년 (실거주 필수) |
7. 전매제한·거주의무·재당첨 제한
역삼센트럴자이는 분양가상한제 적용으로 실거주 목적 청약자에게만 공급됩니다. 전매는 당첨자 발표일(2025.12.24.) 기준 3년간 금지되며, 거주의무기간은 입주 가능일부터 2년입니다. 부정청약이나 위장전입이 적발될 경우 「주택법」 제65조에 따라 3년 이하의 징역 또는 3천만원 이하 벌금이 부과될 수 있습니다.
8. 계약 절차와 유의사항
계약은 2026년 1월 5일부터 7일까지 대치동 자이갤러리에서 진행됩니다. 계약 시 신분증, 인감증명서, 입금확인증, 청약통장 사본 등을 제출해야 합니다.
중도금 대출은 HUG(주택도시보증공사) 보증을 통해 분양가의 40% 내에서 가능하지만, 금융기관 심사에 따라 한도가 달라질 수 있습니다. 대출 거절을 이유로 계약 해지는 불가능하므로, 반드시 자금 계획을 세워야 합니다.
9. 자주 묻는 질문 Q&A
Q1. 청약은 어디서 하나요?
한국부동산원 청약홈에서만 접수 가능합니다.
Q2. 전매제한은 언제까지인가요?
당첨자 발표일(2025.12.24.)부터 3년입니다. 단, 소유권 이전 등기 완료 시까지 전매 제한 유지됩니다.
Q3. 거주의무는 어떻게 되나요?
입주 가능일부터 2년간 실거주가 의무입니다. 위반 시 LH공사 매입 조치 및 형사처벌 가능성이 있습니다.
Q4. 중도금 대출은 가능한가요?
분양보증을 받은 HUG 보증대출 형태로 최대 40% 한도 내 가능합니다.
Q5. 계약 후 부적격 판정 시 어떻게 되나요?
계약은 해지되며, 납부한 계약금 원금만 환불됩니다. 이자는 지급되지 않습니다.
Q6. 입주 예정일은 언제인가요?
2028년 8월 예정이며, 공정률에 따라 변동될 수 있습니다.
10. 입주예정 및 총평
‘역삼센트럴자이’는 강남 도심에 위치한 드문 재건축 일반분양 단지로, 분양가상한제 적용으로 가격 경쟁력이 높습니다. 전매제한과 거주의무 등 까다로운 규제는 실수요자 위주로 청약을 유도하기 위한 조치로, 결국 장기적으로 가치 안정성이 높은 단지가 될 가능성이 높습니다.
2028년 입주 이후에는 자이 브랜드의 고급 커뮤니티 시설과 강남 중심입지라는 두 가지 요소가 결합해 강남권 내 프리미엄 신축으로 자리매김할 것으로 예상됩니다. 청약을 준비하는 분이라면 본 모집공고문을 반드시 정독하고, 본인 자격과 청약통장 요건을 확인한 뒤 청약홈에서 신중히 신청하시기 바랍니다.
공식 홈페이지: https://xi.co.kr/ysxi
분양문의: 1833-5507

'NEWS > 부동산' 카테고리의 다른 글
| 한화포레나 부산대연 청약 일정·분양가 총정리 | 2026년 입주예정 (0) | 2025.12.15 |
|---|---|
| 2026년 부동산 시장, ‘가격’보다 무서운 건 ‘흐름’이다 (0) | 2025.12.12 |
| 송도 한내들 센트럴리버 분양정보 총정리 - 송도 11공구 핵심 입지 아파트 (0) | 2025.12.12 |
| 라비움 한강 도시형생활주택 청약 완벽 가이드|서울 합정 신축 프리미엄 (0) | 2025.12.08 |
| 청계 노르웨이숲 5차 무순위 청약|서울 도심 비규제 아파트 분양 정보 총정리 (0) | 2025.12.04 |
| 신도림역 동문 디 이스트 7차 청약일정 및 분양정보 (0) | 2025.12.03 |
| 어반클라쎄목동 10차 무순위 청약 완전정리 | 서울 양천구 신정동 분양정보 (0) | 2025.12.01 |
| 대방역 여의도 더로드캐슬 무순위 청약 일정 및 자격 완전 해석 (0) | 2025.11.28 |