드파인 연희 청약 완벽 정리 — 분양가, 청약 일정, 자격 요건 총망라
서울 서대문구 연희동의 재개발 핵심 입지에 위치한 ‘드파인 연희(SK에코플랜트 시공)’가 2026년 1월 입주자모집공고를 공개했습니다. 총 332세대 규모의 민영아파트로, 서대문구 내에서는 드물게 등장한 프리미엄 신축 단지입니다. 이번 글에서는 공식 모집공고문(헤럴드경제 2026.01.09 게재)을 기반으로, 청약 일정, 분양가, 자격, 특별공급 조건을 체계적으로 정리했습니다.
📑 목차
- 1. 단지 개요
- 2. 청약 일정
- 3. 공급 세대수 및 평면 구성
- 4. 분양가 및 청약금
- 5. 특별공급 세부 내역
- 6. 청약 자격 및 제한사항
- 7. 서류 제출 및 계약 안내
- 8. 입지와 브랜드 가치
- 9. 자주 묻는 질문
- 10. 종합 요약
1. 단지 개요
드파인 연희는 연희제1구역 주택재개발정비사업을 통해 조성되는 민영주택으로, SK에코플랜트가 시공을 맡았습니다. 서울 도심 접근성과 자연환경, 인프라를 모두 갖춘 입지로 평가받고 있습니다.
| 항목 | 내용 |
|---|---|
| 위치 | 서울특별시 서대문구 연희동 533-5번지 일원 |
| 규모 | 총 332세대 (일반 151세대, 특별공급 181세대) |
| 시행사 | 연희제1구역 주택재개발정비사업조합 |
| 시공사 | 에스케이에코플랜트(주) |
| 입주 예정 | 2029년 1월 |
| 문의처 | 02-303-3457 |
| 공급 형태 | 민영주택 |
| 공식 사이트 | https://yh.skdefine.com |

2. 청약 일정
| 구분 | 해당지역 | 기타지역 | 접수 방법 |
|---|---|---|---|
| 특별공급 | 2026.01.19 | 2026.01.19 | 청약홈(인터넷) |
| 1순위 | 2026.01.20 | 2026.01.21 | 청약홈(인터넷) |
| 2순위 | 2026.01.22 | 2026.01.22 | 청약홈(인터넷) |
| 당첨자 발표 | 2026.01.28 (청약홈 공개) | ||
| 계약일 | 2026.02.08 ~ 02.10 | ||
청약홈 외 사이트(LH·위택스 등) 접수는 인정되지 않으며, 마감일 17시 이후 접수는 무효 처리됩니다.
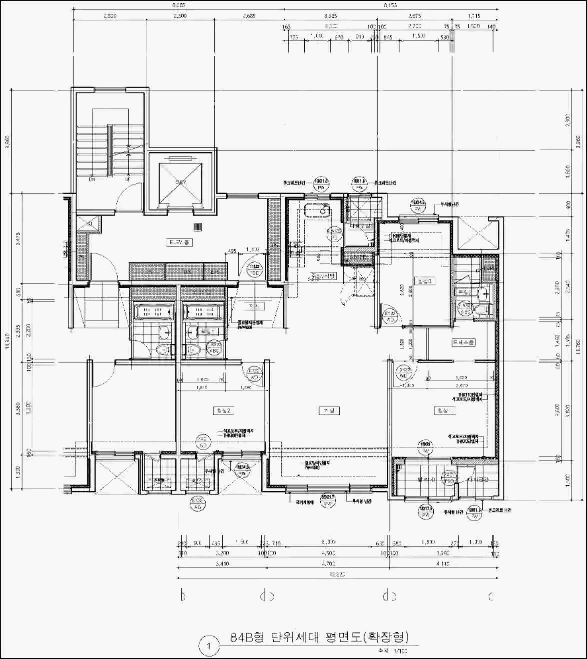
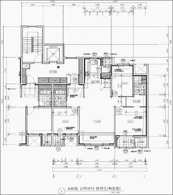
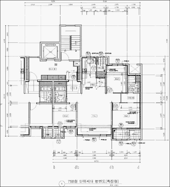
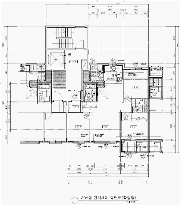
3. 공급 세대수 및 평면 구성
드파인 연희는 전용면적 59㎡에서 115㎡까지 17개 타입으로 구성되어 있으며, 332세대 중 절반 이상이 특별공급 대상입니다.
| 주택형 | 면적(㎡) | 일반 | 특별 | 계 |
|---|---|---|---|---|
| 59A | 82.48 | 45 | 52 | 97 |
| 59B | 81.88 | 34 | 41 | 75 |
| 74A~C | 97.0~97.3 | 11 | 13 | 24 |
| 75A~C | 99.1~99.4 | 11 | 12 | 23 |
| 84A~I | 110~111.9 | 49 | 61 | 110 |
| 115B | 152.97 | 1 | 0 | 1 |
| 총계 | – | 151 | 181 | 332 |






4. 분양가 및 청약금
분양가는 주택형에 따라 1억 2천만 원대부터 2억 3천만 원대까지 다양하며, 청약금은 별도 납입 없이 청약통장으로만 신청 가능합니다.
| 주택형 | 최고가(만원) | 비고 |
|---|---|---|
| 59A | 124,300 | 청약통장 청약 |
| 59B | 120,100 | 동일 |
| 74~75㎡ | 126,300~137,900 | 동일 |
| 84㎡ | 139,700~156,500 | 동일 |
| 115㎡ | 235,900 | 동일 |
입주 예정 시기는 2029년 1월로 예정되어 있으며, 공정 진행에 따라 일부 조정될 수 있습니다.
5. 특별공급 세부 내역
특별공급은 총 181세대이며, 신혼부부 및 다자녀 가구 비중이 높습니다.
| 유형 | 세대수 |
|---|---|
| 다자녀 가구 | 32 |
| 신혼부부 | 67 |
| 생애최초 | 28 |
| 노부모 부양 | 8 |
| 기관추천 외 기타 | 46 |
| 합계 | 181 |
6. 청약 자격 및 제한사항
1) 지역요건
서울시 2년 이상 거주자는 우선 청약 자격을 가지며, 기타 수도권 거주자는 잔여 물량에 한해 신청 가능합니다.
2) 통장요건
청약예금 또는 주택청약종합저축 1순위자만 신청할 수 있으며, 예치금 충족은 청약일 전일까지 완료해야 합니다.
3) 재당첨 제한
투기과열지구 내 재당첨 제한 기간은 10년이며, 부적격 판정 시 수도권 전체 청약 자격이 1년간 제한됩니다.
7. 서류 제출 및 계약 안내
당첨자 발표 후 2026.01.29~02.05까지 드파인 연희 견본주택에서 서류를 제출해야 하며, 계약은 2026.02.08~02.10에 진행됩니다.
대리인 계약은 위임장 및 신분증 지참 시에만 가능하며, 서류 미제출 시 당첨이 취소됩니다.
8. 입지와 브랜드 가치
INFRA
DMC, 이마트, 세브란스병원 등 생활 인프라 접근성이 뛰어나며 도심권까지 20분 내 진입이 가능합니다.
NATURE
홍제천과 안산도시자연공원이 인접하여 도심 속 자연 환경을 즐길 수 있습니다.
BRAND
‘DEFINE’ 브랜드의 첫 서울 정비사업 단지로, 외관·조경·스마트 시스템을 고급화했습니다.
VISION
대장홍대선(예정), 서부선 경전철(계획) 등 교통망 확충으로 향후 가치 상승이 기대됩니다.
9. 자주 묻는 질문
Q1. 청약은 어디서 하나요?
한국부동산원 청약홈에서만 가능합니다.
Q2. 특별공급 중복 신청 가능한가요?
불가합니다. 단, 일반공급 1건은 병행 신청 가능하지만 특별공급 당첨 시 자동 제외됩니다.
Q3. 계약 포기 시 불이익은?
당첨자는 계약 체결 여부와 무관하게 ‘당첨 관리 대상’으로 등록되어 5년간 1순위 청약이 제한됩니다.
10. 종합 요약
- 위치: 서울 서대문구 연희동 533-5
- 총세대: 332세대 (일반 151, 특별 181)
- 청약일정: 2026.01.19~22
- 당첨발표: 2026.01.28
- 계약일: 2026.02.08~10
- 입주예정: 2029.01
- 시공사: SK에코플랜트
- 구분: 투기과열지구 / 청약과열지역

'NEWS > 부동산' 카테고리의 다른 글
| 어반클라쎄목동(11차) 무순위 청약 모집공고 총정리 (0) | 2026.01.20 |
|---|---|
| 엘리프 미아역 1단지 4차 임의공급 청약안내 | 2026년 8월 입주예정 (0) | 2026.01.16 |
| 청량리역 요진 와이시티 오피스텔 분양 정보 | 2026년 청약 일정 총정리 (0) | 2026.01.14 |
| 에스아이팰리스 올림픽공원 무순위 청약 완전 가이드 | 강동구 후분양 아파트 (0) | 2026.01.12 |
| 더샵 송파루미스타 3차 청약 │ 가락동 포스코 분양가, 일정, 자격 총정리 (0) | 2026.01.07 |
| 영종하늘도시 대라수 어썸 A50BL 청약 일정 및 분양정보 총정리 (0) | 2025.12.28 |
| 2025년 2차 SH 장기안심주택 모집공고 완벽 정리 | 무이자 보증금 6천만 원 지원 (0) | 2025.12.24 |
| 동래 푸르지오 에듀포레 청약 일정 및 분양가 총정리 (0) | 2025.12.23 |